Feuchteschäden




Wasser wird in vielen Bereichen zum Bauen benötigt. Kommt es jedoch zu Feuchteschäden an Bauwerken sind die Folgen oft gravierend. Wie kann es zu solchen Schäden kommen und in welcher Weise können sie wirken?





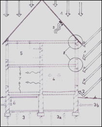
Wassereinwirkungen auf die Bausubstanz

1. Niederschläge auf Dach, Fassade, Balkone und Terrassen
2. Spritzwasser im Sockelbereich
3a. aus dem Baugrund aufsteigende Feuchte
3b. aus dem Baugrund seitlich eindringende Feuchte
4. Belastungen in Naßräumen, z.B. durch Duschen
5. Kondensation und zu hohe relative Luftfeuchte
6. Leckagen wasserführender Leitungen
7. Restfeuchte in Baustoffen
8. Wärmebrücken und Luftströmungen nach innen
9. Luftströmungen nach außen






Schäden durch Feuchte

Welche schädigenden Wirkungen können Bauteildurchfeuchtungen oder Oberflächenfeuchte haben?





Optische Mängel

Feuchte Oberflächen und durchfeuchtete Bauteile führen zu optischen Mängeln, die von kaum sichtbaren Stockflecken bis zu intensiven Verfärbungen auftreten können. Allein der Anblick derartiger Flecken wird zumindest als störend empfunden, meist jedoch als bedrohend. Tatsächlich gehen solche Erscheinungen in aller Regel auch mit Schimmelpilz- und / oder Bakterienbefall einher, auch wenn dieser vom Laien nicht als solcher erkannt wird.





Verminderung des Wärmeschutzes

Es besteht eine unmittelbare Wechselwirkung zwischen Feuchte- und Wärmeschutz von Gebäuden. Feuchte Baustoffe leiten Wärmeenergie deutlich besser nach außen ab, als trockene. Mit zunehmenden Feuchtegehalt der Baustoffe steigt die Wärmeleitfähigkeit bzw. der Wärmedurchgangskoeffizient U. Die Folgen sind - zusätzlich zu den unten beschriebenen - Energieverluste, steigende Heizkosten und mangelnde Behaglichkeit. Ein intakter Feuchteschutz bewirkt daher auch Einergieeinsparung, Umweltschutz und Kostensenkung.





Schimmelpilzbefall in Innenräumen

Schimmelpilzbelastungen in Innenräumen stellen immer ein hygienisches Problem dar. Befindlich- keitsstörungen und Gesundheitsgefährdungen können die Folge sein. Dabei zeigt sich der Befall bei Weitem nicht immer so deutlich wie auf dem nebenstehenden Bild. Die Schäden können verdeckt liegen, z.B. unter Tapeten oder im Bodenaufbau. Sehr viele Schäden werden erst durch Untersuchungen entdeckt. Die Ursachen sind höchst unterschiedlich.





Zerstörungen durch Holzfäulepilze

Holzzerstörende Pilze wie beispielsweise der Echte Hausschwamm bedrohen nicht nur Massivholzteile sondern unter Umständen auch andere zellulosehaltige Werkstoffe wie Spanplatten, Pappe, oder Papier. Anders als bei Schimmelpilzen liegt hier die Gefahr in der Substanzzerstörung, die bis zum Verlust der Tragfähigkeit führen kann. Viele Schäden liegen verdeckt, z.B. im Bereich bekleideter Holzbalkendecken oder Fachwerkwände. Der Befall kann oftmals nur durch Beprobung bestätigt werden.





Algenbefall auf Außenoberflächen

Sind Außenoberflächen wie Putzfassaden, Sichtbetonflächen oder Holzbekleidungen anhaltend feucht, kann es zur Ansiedlung mit Algen und Pilzen kommen. Die Folgen sind mehr oder minder starke Verfärbungen der betroffenden Oberflächen und Wertverluste. Vielfach sind thermische Probleme ursächlich für die Schäden, die auch auf feuchte Bausubstanz zurück zu führen sein kann.





Zerstörung durch bauschädigende Salze

In Bauteile eingetragene und in Baustoffen vorhandene Salzverbindungen werden bei entsprechendem Feuchtegehalt an Oberflächen transportiert und kristallisieren dort aus. Es kommt zu Absprengungen von Farbschichten und Putzen sowie zu Zerstörungen im Mauerwerksgefüge selbst. Oftmals entstehen hässliche Ausblühungen und Verfärbungen. Baustoffe mit hohem Salzgehalt weisen außerdem eine deutlich höhere Feuchteaufnahme aus der Luft auf, so dass es zu zusätzlicher Auffeuchtung der Bausubstanz kommt.





Streitigkeiten

Alle oben geschilderten Schäden durch Feuchte führen regelmäßig auch zu Streitigkeiten zwischen Parteien, etwa Vermieter und Mieter oder zwischen Bauträger und Hauskäufer. Dabei sind Schimmelpilzbelastungen wohl deshalb hervorzuheben, da sie ständig zunehmen und mehr als andere Schäden als Bedrohung empfunden werden. Lange Verfahren kosten Zeit, Geld und Nerven. Daher lohnt es sich rechtzeitig ausgewiesene Fachleute mit der Problemlösung zu betrauen.


(C) 2008 - Alle Rechte vorbehalten

Diese Seite drucken